Fonte Bela
- Home
- Empreendimentos
- Fonte Bela
Fonte Bela
A freguesia do Pico da Pedra recebe um novo empreendimento residencial destinado aos cooperantes inscritos na Nossa Vila Nossa Casa, CRL. Trata-se da construção de 55 habitações multifamiliares de tipologia T3, desenvolvidas no âmbito de “custos controlados”, garantindo a otimização dos recursos e a redução dos custos de construção.
Localização
Pico da Pedra
Empreendimento
Construção de 55 habitações multifamiliares
Destinatários
Cooperantes inscritos na Nossa Vila Nossa Casa, CRL
Modelo de construção
Realizado no modelo de “custos controlados”, assegurando a otimização dos recursos e a redução dos custos de construção.
Características
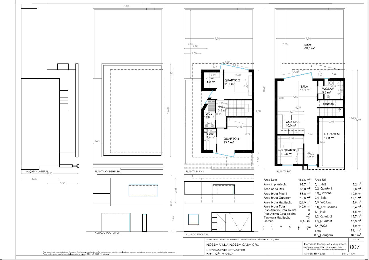
- Área do Lote 23 818 m2
- Área do Lote Fogo 152,8 m2
- Área Verde Publica 2 978,63 m2
- Nº estacionamentos publico 115
- Nº de Pisos 2
- Garagem 16.0 m2
- Área útil 97.5 m2
- Área Logradouro 66,8 m2
- Área Útil da Habitação 97,5 m2
- Área Bruta de Construção 140,4 m2
- Quartos 3
- WC/Casas de banho 2
Cronograma
Projeto
Planeamento
Construção
Entrega







